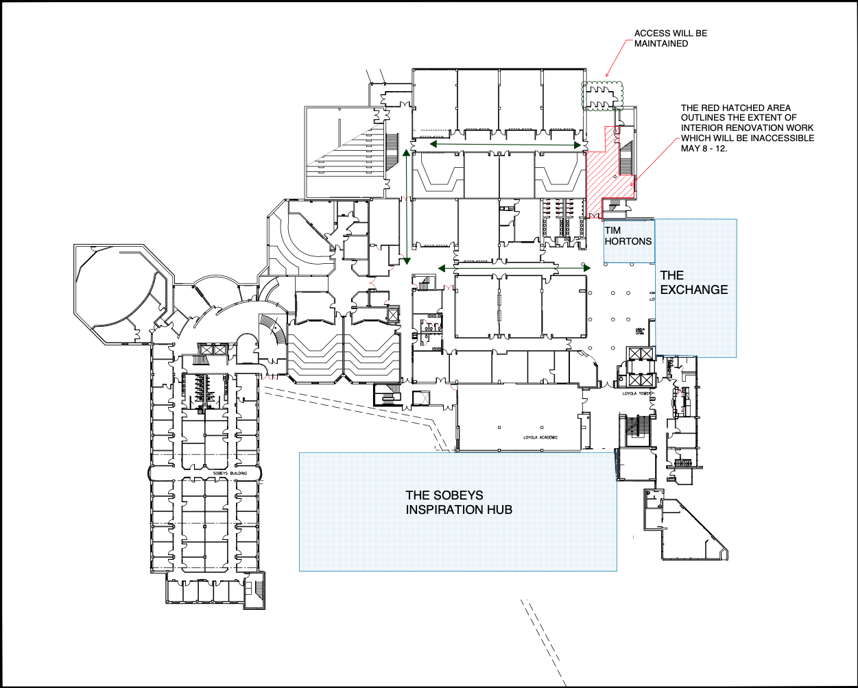
Contractors working with the university on the E&I Hub construction project will soon be laying new floor tile in the northeast lobby of Loyola Academic, which will temporarily impact how the space is accessed.
Please note the following:
From May 8 – May 12, access from the Tim Hortons area to the northeast lobby (near the ATM) will be re-routed through side corridors. This area will be reopened as soon as the floor tile has been laid.
Access through the northeast lobby doors will be maintained, but interior routing is impacted. There will be ample directional signage posted by the construction team to re-route foot traffic.
Thank you for your patience and understanding with these disruptions as Saint Mary’s moves forward with this exciting project.

